• организация
  • стоимость работ
  • архитектура
  • дизайн интерьера
  • ландшафтное проектирование
  • контакты
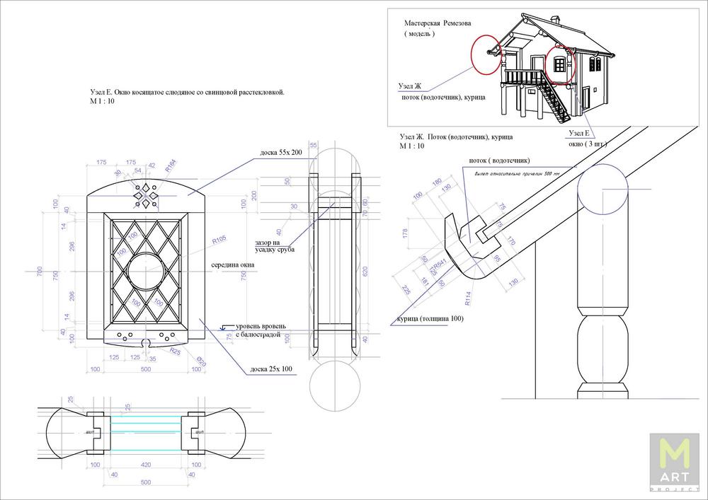
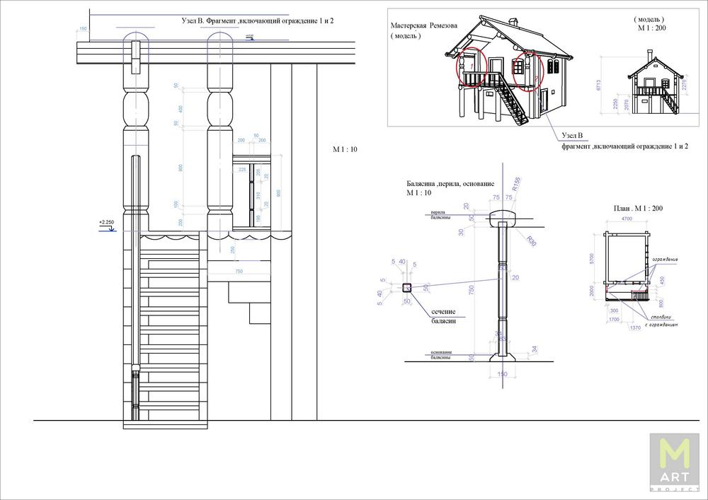
Мастерская Ремезова
Мастерская Ремезова
Мастерская Ремезова
Мастерская Ремезова
Мастерская Ремезова

сайт от vigbo